加载中
首页
图库
课设毕设
资料库
工程师
活动福利
+
发布图纸
登录
注册
账号密码登录
两周免密登录
忘记密码?
登 录
同意
《隐私协议》
和
《注册协议》
还没有账号,
去注册
账号注册
获取验证码
同意
《隐私协议》
和
《注册协议》
注册
已有账号,
去登录
微信扫码登录
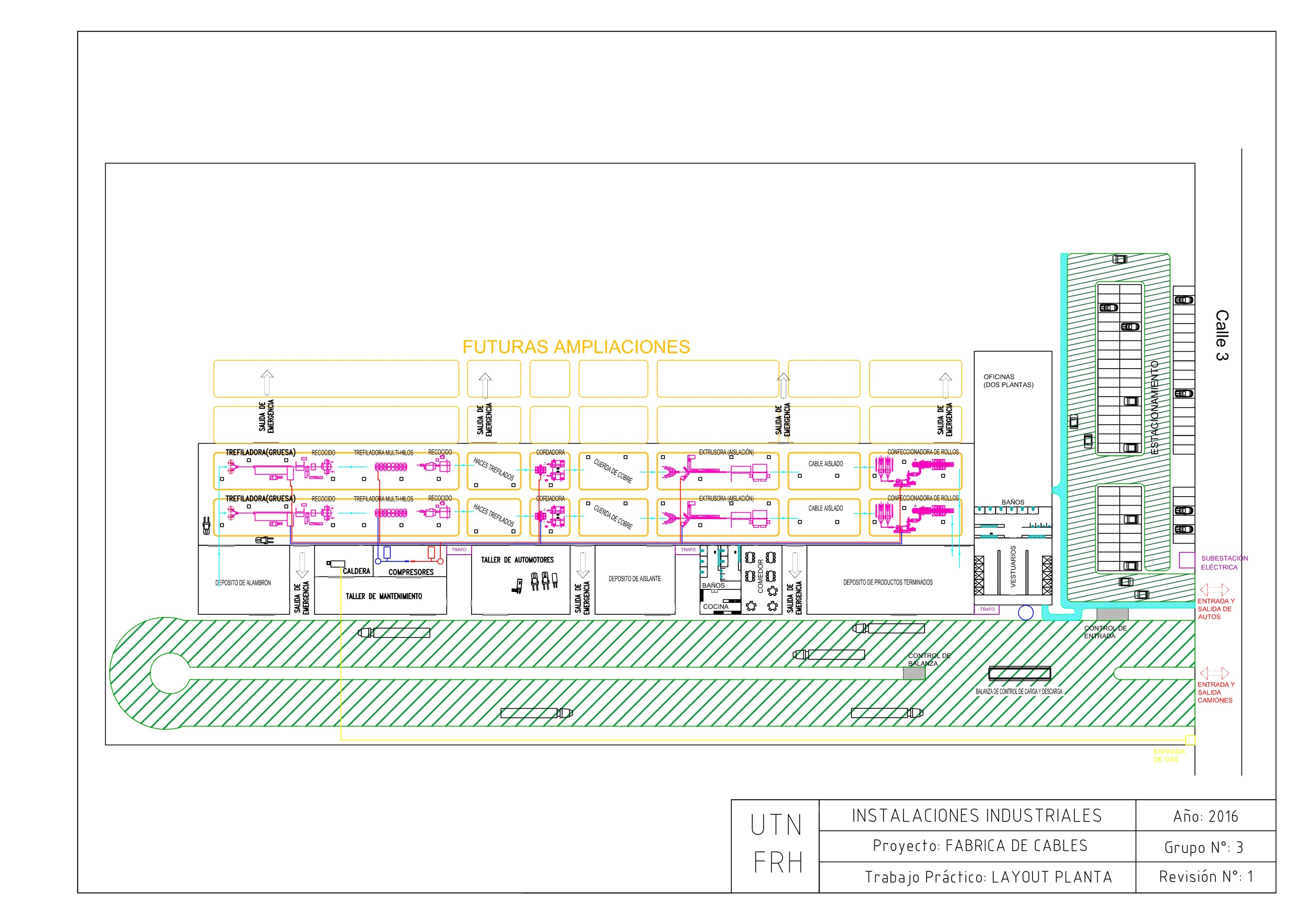
电缆制造厂布局 _ 电缆制造厂布局(ID:611629)
电力仪表
/
电气附件
/
电缆制造厂布局 _ 电缆制造厂布局
145
0
0
平面图
3D视图
文件列表
屿双网
屿双网
屿双网
屿双网
屿双网
屿双网
屿双网
#
文件名称
文件大小
1
Agua de proceso-A3-1.jpg
517 KB
2
Lay Out Fabrica.dwg
1010 KB
3
Layout Fábrica-1.jpg
929 KB
4
Layout Gas-1.jpg
487 KB
举报/反馈
免责申明: 本网站模型由用户自行上传,如权利人发现存在误传其作品情形,请及时与本站联系。
立即下载
此图纸下载需要
15
金币
图纸ID:
611629
文件大小:
1.37M
软件版本:
AUTOCAD 2000
图纸格式:
dwg
参数/编辑:
可修改,包括参数
上传时间:
2024-08-05
图纸介绍:
发布者
屿双网cxxx
关注
作品:
1085
粉丝:
0
作者其它图纸
查看更多
锤片式粉碎机设计图
SOLIDWORKS,UG
2024-08-02 11:34
番茄采摘机器人模型
SOLIDWORKS,IGES,STEP
2024-08-01 16:52
履带越障机器人
SOLIDWORKS,AUTOCAD,STEP
2024-08-01 13:07
课设灌装机
SOLIDWORKS
2024-08-01 15:29
小型风干机
SOLIDWORKS,STEP
2024-08-03 14:44
DPC1616单段锤式破碎机图纸总图
AUTOCAD
2024-08-05 12:58
自动切鱼片机模型
AUTOCAD,STEP,SOLIDWORKS
2024-08-02 14:45
管机自动上料机构
SOLIDWORKS,STEP
2024-08-01 10:07
猜你喜欢
电气符号 计数控制 (gb4728_3_3-2)
AUTOCAD
2024-01-12 01:43
TB-4504接线端子三维模型202011
STP
2025-04-17 16:05
接线端子molex-172160-18-20-awg-1 3 STP STL
STEP,STL
2025-02-17 19:48
轴流式风扇_EBM 8D-800
STEP
2025-03-04 10:37
端子15EDGVH-3.5-40P-14-00AH
STEP
2025-03-22 19:54
端子15EDGKDM-3.5-22P-14-00AH
STEP
2025-03-22 19:08
YWZ7系列电力液压鼓式制动器YWZ7-400/80-ⅡA-HL.WL.RL.WCDKXDC03-1
SOLIDWORKS
2025-05-12 15:28
YWZD系列电力液压鼓式制动器YWZD-710/300-ⅠB-RL.HL
SOLIDWORKS
2025-05-12 15:53
模型报错
模型报错类型:
分类错误
版本错误
雷同或版权问题,重复ID
图片与模型不一致
文件不完整
解压文件打不开或有问题
模型报错描述:
联系方式
提交报错
提示
×
下载该图档需要消耗15金币!
确认下载
我和
会话
发布私信
客服
扫码添加微信客服
签到
分享
TOP