加载中
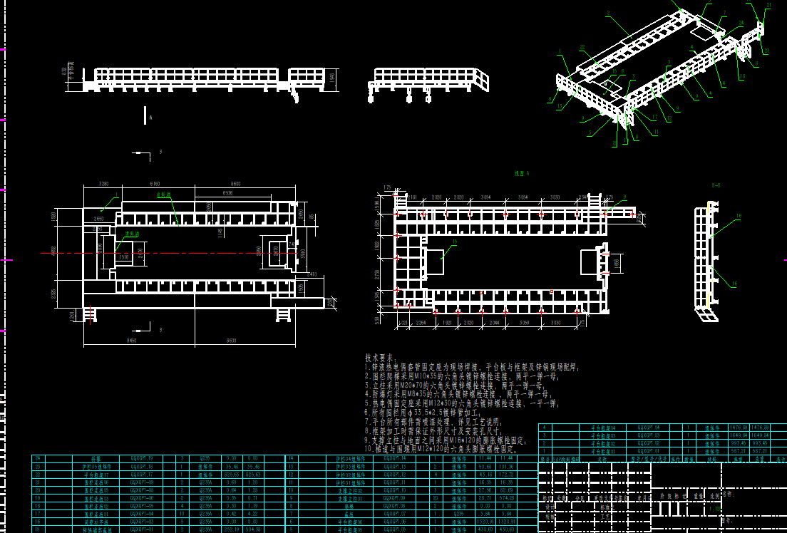
钢结构平台CAD(ID:695571)
免责申明: 本网站模型由用户自行上传,如权利人发现存在误传其作品情形,请及时与本站联系。
立即下载
此图纸下载需要180金币
图纸ID:695571
文件大小:1.42M
软件版本:AUTOCAD 2004
图纸格式:dwg
参数/编辑:可修改,包括参数
上传时间:2025-03-08
图纸介绍:
发布者
辞许
作品: 179
粉丝: 2
作者其它图纸
查看更多
锤式破碎机设计+说明书
AUTOCAD
2024-01-22 01:26
牵引履带车SW
SOLIDWORKS
2025-03-08 10:15
MNS改进型抽屉式开关柜
SOLIDWORKS,AUTOCAD,PARASOLID,STEP,IGES
2024-04-03 01:01
S195柴油机CAD全套图纸
AUTOCAD
2024-01-22 01:28
大型农贸市场
AUTOCAD
2024-01-22 01:28
猜你喜欢
线圈储物货架
SOLIDWORKS,STEP
2024-08-03 20:36
3#结构设计说明
AUTOCAD
2025-08-22 22:48
切线圆结构
STP
2025-02-15 16:07
两自由度支架
SOLIDWORKS
2024-09-05 15:37
Kinetic Sculpture机械鸟摆件结构
SOLIDWORKS
2024-07-03 01:25
提示
×

下载该图档需要消耗180金币!

确认下载
客服
TOP