加载中
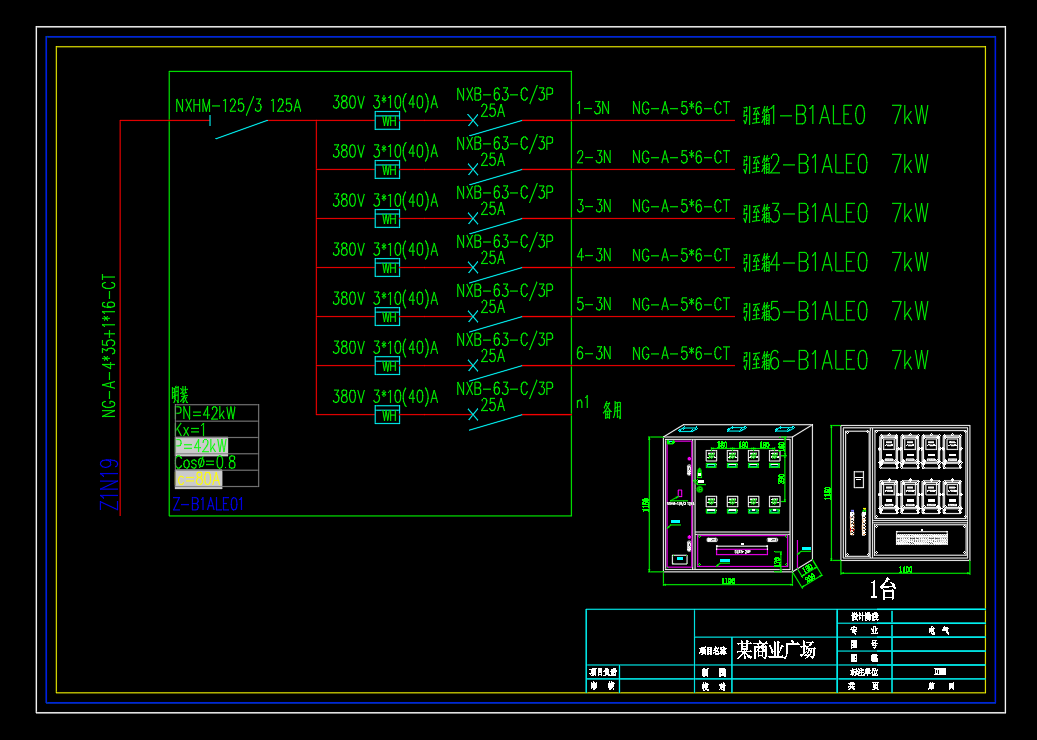
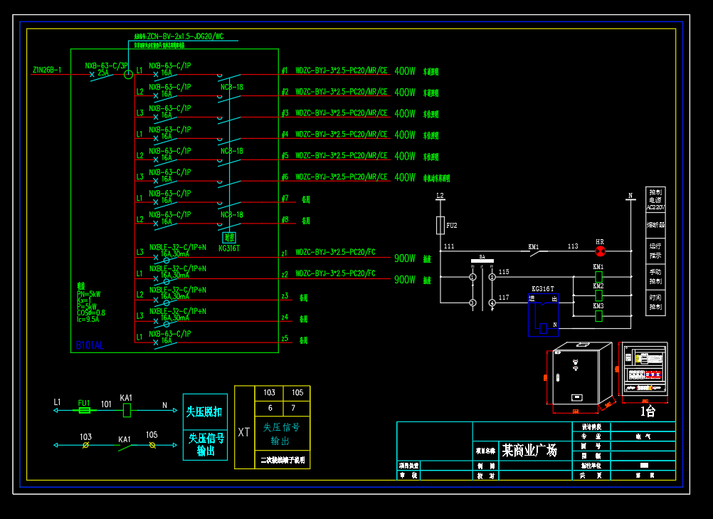
商业广场-成套电气配电箱动力柜深化图箱体图(ID:843724)
免责申明: 本网站模型由用户自行上传,如权利人发现存在误传其作品情形,请及时与本站联系。
免费下载
此图纸可免费下载
图纸ID:843724
文件大小:3.21M
软件版本:AUTOCAD 2007
图纸格式:dwg
参数/编辑:可修改,包括参数
上传时间:2026-01-22
图纸介绍:
发布者
屿双网小匠
作品: 13827
粉丝: 65
作者其它图纸
查看更多
SolidWorks设计的AR15步枪3D模型
SOLIDWORKS,STEP,PARASOLID,UG
2024-05-20 00:45
小米汽车su7   三维模型
STEP,3DMAX,BLENDER
2024-04-09 01:39
塑料铺设农机结构
STEP,SOLIDWORKS
2024-02-27 00:57
CNC 三轴模型
SOLIDWORKS,STL
2024-05-27 20:42
同步轮同步带直线滑台模组
SOLIDWORKS,STEP,PARASOLID
2024-01-09 01:27
1比35 虎式坦克
STEP,SOLIDWORKS
2024-03-01 16:29
猜你喜欢
端子2EDGKDBM-5.0-06P-14-00AH
STEP
2025-02-20 19:31
15米高杆灯电气控制基础图
AUTOCAD
2024-05-31 20:21
CCT22-M8电气元器件
STP
2025-04-17 09:32
端子2EDGKDB-5.0-13P-14-00AH
STEP
2025-02-20 19:38
散热器662
STEP
2025-01-15 22:08
端子2EDGKDBM-5.0-21P-14-00AH
STEP
2025-02-20 19:33
120毫米风扇箱
IGES,STEP
2024-01-13 09:59
提示
×

下载该图档需要消耗0金币!

确认下载
客服
TOP